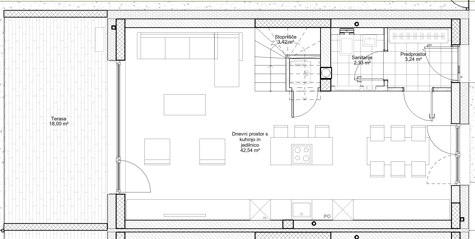
HIŠA 12 PRODANA NAČRTI TEHNIČNI OPIS 3D PRIKAZ SEZNAM HIŠ Načrt zemljišča z objektom 12 Tloris pritličja 12 Tloris nadstropja 12 Tloris podstrešja 12 PODATKI: Z POVRŠINA ZEMLJIŠČA 247 m2 Z NETO UPORABNA POVRŠINA 145,11 m2 Z PRITLIČJE 51,53 m2 Z NADSTROPJE 50,38m2 Z PODSTREŠJE 43,20 m2 Z TERASA 18,00 m2 Z VRTNA LOPA 6,00 m2